|
| |
 |
| |
無錫賽文傳動科技有限公司
電話:0510-85187479
傳真:0510-68560879
范經理:13961710084
網址:www.henghaitian.com
郵箱:sales@wxswcd.com
地址:無錫市濱湖區雙新工業園
|
| |
|
|
|
FCEDA蝸輪蝸桿減速機 |
|
| |
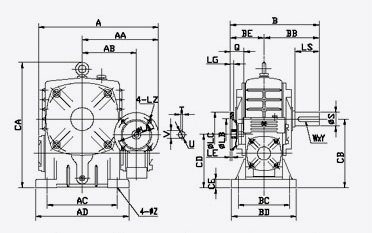
軸指向表示(Shaft Directio)
|
型號Size
|
入功率KW
|
減速比Ratio
|
A
|
AB
|
BB
|
BE
|
CD
|
CB
|
CA
|
BD
|
AD
|
BC
|
AC
|
G
|
CE
|
電機法蘭Flange
|
入力孔
Input Hole
|
出力軸
Output shaft
|
|
LA
|
LB
|
LC
|
LE
|
LZ
|
Q
|
U
|
T×V
|
LS
|
S
|
W×Y
|
重量(weight)(kg)
|
|
40-70
|
0.12
|
1/200
1/300
1/400
1/500
1/600
1/800
1/900
|
287
|
126
|
131
|
75
|
110
|
140
|
236
|
150
|
190
|
115
|
150
|
20
|
15
|
115
|
95
|
140
|
4
|
M8
|
31
|
11
|
4×12.8
|
60
|
28
|
8×4
|
19
|
|
50-80
|
0.18
|
314
|
144
|
142
|
83
|
130
|
160
|
268
|
170
|
220
|
135
|
180
|
20
|
15
|
115
|
95
|
140
|
4
|
M8
|
31
|
11
|
4×12.8
|
65
|
32
|
10×5
|
27
|
|
60-100
|
0.37
|
387
|
175
|
169
|
91
|
160
|
200
|
336
|
190
|
270
|
155
|
220
|
25
|
15
|
130
|
110
|
160
|
4
|
M8
|
33
|
14
|
5×16.3
|
75
|
38
|
10×5
|
45
|
|
70-120
|
0.37
|
425
|
193
|
190
|
109
|
190
|
240
|
430
|
230
|
320
|
180
|
260
|
30
|
18
|
130
|
110
|
160
|
4
|
M8
|
40
|
14
|
5×16.3
|
85
|
45
|
14×5.5
|
75
|
|
0.75
|
445
|
111
|
165
|
130
|
200
|
M10
|
42
|
19
|
6×21.8
|
|
80-135
|
0.75
|
499
|
226
|
210
|
125
|
215
|
270
|
480
|
250
|
350
|
200
|
290
|
30
|
18
|
165
|
130
|
200
|
4.5
|
M10
|
48
|
19
|
6×21.8
|
95
|
55
|
16×6
|
103
|
|
1.5
|
52
|
24
|
8×27.3
|
|
100-155
|
1.5
|
570
|
269
|
252
|
148
|
235
|
290
|
531
|
275
|
390
|
220
|
320
|
35
|
21
|
165
|
130
|
200
|
4.5
|
M10
|
52
|
24
|
8×27.3
|
110
|
60
|
18×7
|
147
|
|
120-175
|
2.2
|
631
|
287
|
262
|
181
|
280
|
335
|
600
|
310
|
430
|
250
|
350
|
40
|
21
|
215
|
180
|
250
|
5
|
M12
|
63
|
28
|
8×31.3
|
110
|
65
|
18×7
|
204
|
|
3.0
|
|
135-200
|
3.0
|
680
|
318
|
305
|
202
|
310
|
375
|
666
|
360
|
480
|
290
|
390
|
40
|
24
|
215
|
180
|
250
|
5
|
M12
|
63
|
28
|
8×31.3
|
125
|
70
|
20×7.5
|
298
|
|
4.0
|
|
155-250
|
5.5
|
815
|
380
|
360
|
247
|
355
|
450
|
800
|
460
|
560
|
380
|
480
|
45
|
28
|
265
|
230
|
300
|
5
|
M12
|
83
|
38
|
10×41.3
|
155
|
90
|
25×9
|
470
|
|
|
|